UNIQUE PROPERTY FOR SALE IN BUDAPEST
III.ker. Ürömhegy – ÚJ ÉPÍTÉSŰ, ENERGIATAKARÉKOS ikerházak eladók! 120,74m²+32,41m² | 110,49m²+37,36m² | 126,52m²+43m² | 128,14m²+ 43,30m².

Eladó 3.Ker.
Ürömhegyi Lakások

Képviselem Önt annak érdekében, hogy az értékesítés gyorsan, hatékonyan és a legmagasabb szakmai színvonalon menjen végbe. Elkötelezett, budapesti ingatlanszakértő vagyok, aki szorgalmasan és sikeresen dolgozik egy vezető nemzetközi belvárosi irodában.
Finanszírozás - a teljesség igénye nélkül:
1.CSOK Plusz (kamattámogatott hitel):Ikerházra is felvehető, ha az adott lakás önálló tető- és épületszerkezettel, saját bejárattal rendelkezik, és lakóházként/lakásként van nyilvántartva. A támogatás mértéke a vállalt/meglevő gyerekek számától, a házastársak életkorától és az ingatlan méretétől/árától függ (új és használt ikerházra is lehetőség van).
2.Kedvezményes 5% lakásáfa új ikerházra:
Új építésű ikerház-fél vásárlásánál – ha az alapterület 150 m²-en (lakás) vagy 300 m²-en (lakóház) belül van – 2026. végéig alkalmazható az 5%-os áfakulcs a 27% helyett.
3.Illetékkedvezmény / illetékmentesség:
Alapesetben 4% vagyonszerzési illetéket kell fizetni, de CSOK Plusz vagy falusi CSOK igénybevétele esetén bizonyos esetekben részleges, vagy teljes illetékmentesség járhat lakásvásárláskor. Ha valaki drágább lakásba költözik (cserét jelentő vásárlás), léteznek további illetékkedvezmények is, amelyeket az adásvételkor az adóhatóság felé lehet érvényesíteni.
4.Otthontámogatás és kamattámogatások (új 2026-os programok):
2026-tól elérhető az Otthontámogatás: a közszolgálatban dolgozók lakáshitelére évente akár nettó 1 millió Ft vissza nem térítendő támogatás kérhető, ami ikerház-vásárlás hitelezésére is felhasználható. Emellett más állami kamattámogatott konstrukciók (pl. Otthon Start, célzott kamattámogatások) is kombinálhatók lakáshitellel, ha a jogszabály szerinti feltételek teljesülnek.
BANKFÜGGETLEN hitelcentrumunk az országban elérhető ÖSSZES BANK ÉS HITELINTÉZET ajánlatát VERSENYEZTETI az Ön számára díjmentesen.
MUNKATÁRSAINK nagy szakmai tapasztalattal várják Önt az előre egyeztetett időpontban akár a normál munkaidő után is.Akiknek ajánljuk:Az ingatlan ideális választás mindazoknak, akik a III. kerületben, zöld környezetben keresnek modern, napfényes, jól kihasználható terekkel rendelkező otthont – akár életvitelszerűen, akár nyaralóként vagy befektetésként.
3.KERÜLETI IKERHÁZAK
III.ker. Ürömhegy – ÚJ ÉPÍTÉSŰ, ENERGIATAKARÉKOS ikerházak eladók!
Elérhető lakások a fejlesztésben:
I. Épület (Kőpor utca): Építés éve: 2026.
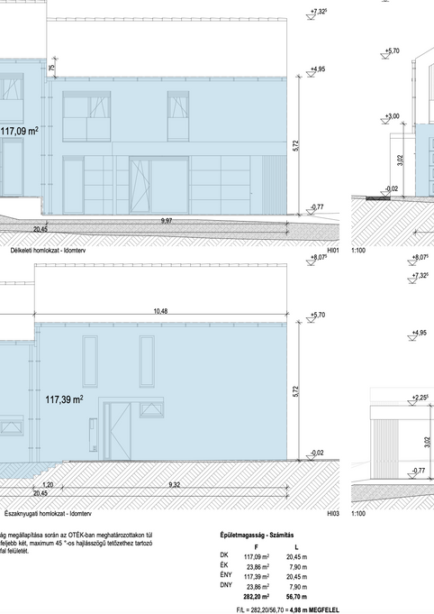
*K-A Lakás: 120,74m² + E./Terasz:32,41m², Szoba: 4, Fürdő: 2, Parkoló: 2, Telek: 405,5m² - 216,0 Mft.
*K-B Lakás: 110,49m² + E./Terasz: 37,36 m², Szoba: 4, Fürdő: 2, Parkoló: 1db, Telek:405,5m² - 209,9Mft.
II. Épület (Ürömhegyi lejtő): Építés éve: 2027.
*Ü-A Lakás: 126,52m² + E./Terasz: 43,00 m², Szoba: 5, Fürdő: 2, Parkoló: 2, Telek: 405,5m² - 275,9Mft.
*Ü-B Lakás:128,14m² + E./Terasz: 43,30 m², Szoba: 5, Fürdő. 2, Parkoló: 2, Telek: 405,5m² - 275,9Mft.
Parkolóhely, parkolás: udvari beállóhely: (3Mft./db), garázs: (6Mft./db). Az eladási árak tartalmazzák a lakáshoz számított parkoló/beálló/garázs árait.
Műszaki tartalom – alacsony rezsi, magas komfort:
„A” energetikai besorolású, hőszivattyús rendszerrel,
Felület fűtés–hűtés minden helyiségben,
Választható, minőségi burkolatok és szaniterek,
Téglafalak kívül-belül, korszerű, szigetelt nyílászárók, nappaliban emelő-toló ajtó,
Szigetelt falazat és tető, elektromos redőny előkészítéssel,
A műszaki megoldások hosszú távon kiszámítható, energiahatékony fenntartást biztosítanak.
A lakás kiváló választás állandó otthonnak is.
KÖZLEKEDÉS
Buszközlekedés:
A 219-es BKK-busz Csillaghegy HÉV-állomás és Aranyhegy/Ürömhegy térsége között közlekedik, Ürömhegyi út / Jutas utca végállomással, így közvetlen kapcsolatot a Csillaghegy HÉV-hez. A vonal bejárja Aranyhegy–Ürömhegy utcáit (Jutas utca, Iglice utca, Saroglya utca környéke), tehát a hegy belső része elérhető a HÉV- és városi hálózaton.
Ürömi helyi járatok, Volán:
Üröm külön helyi kisbuszjáratot üzemeltet Templom tér–Csillaghegy Fürdő utca és Templom tér–Sadove viszonylaton, ami javítja az átszállási kapcsolatot a HÉV-hez és a budapesti oldalhoz. Ürömre és az Üröm–Pilisborosjenő térségbe Volánbusz-járatok és MÁV-helyközi menetrendek vannak, amelyek részben alternatívát nyújtanak az autó helyett.
Vasút és HÉV kapcsolat:
A legközelebbi kötöttpályás kapcsolat a Csillaghegy HÉV-állomással, ahova a 219-es busz és az ürömi kisbusz visz le, innen gyorsan be lehet jutni a belváros felé a szentendrei HÉV-vel. Üröm vasútállomás a Budapest–Esztergom vonalon található, jegypénztár nélküli megállóként, ahonnan vonattal Óbuda és a budapesti belső részek felé továbbutazni.
EGÉSZSÉGÜGYI SZOLGÁLTATÁS
Gyógyszertárak:
A Harsánylejtő Gyógyszertár a Bécsi út 314. alatt, 0-24 órás nyitvatartással, ingyenes utcai parkolással. Külön gyógyászati és állatgyógyászati termékek is elérhetők.
Háziorvos, gyermekorvos, védőnő:
Üröm egészségügyi alapellátása az Egészségházban működik (Üröm, Dózsa György út 34.), itt több felnőtt háziorvosi körzet (pl. dr. Fehér Eszter, dr. Somogyi András, dr. Gelencsér Tamás) rendel. Ugyanitt működik gyermekorvosi és védőnői szolgálat is, terhes- és csecsemőtanácsadással, tehát a háziorvosi alapellátás Ürömhegyről is ide tartozik.
Fogászat és magánfogászat:
Az ürömi Egészségházban fogorvosi ellátás is van (dr. Zakariás Gyöngyvér), meghatározott rendelési időkkel. Emellett Üröm központjában több magán fogászati rendelő működik (pl. Mercz Dental – Fő utca 61., Dentüröm – Fő utca 41.), ahol teljes körű fogászati és esztétikai kezeléseket nyújtanak.
Szakorvosi és kórházi ellátás a közelben:
Komolyabb, szakorvosi vagy kórházi ellátásra jellemzően Óbuda–Békásmegyer rendelőit (pl. Bécsi úti, Csobánka téri, Füst Milán utcai háziorvosi és szakrendelők) vagy budapesti kórházakat vesznek igénybe, amelyek autóval és tömegközlekedéssel is elérhetők Ürömhegyről. Ügyeleti ellátás, sürgősségi ellátás szintén a fővárosi, kerületi ügyeleteken történik, nem közvetlenül Ürömhegyen.
OKTATÁSI INTÉZMÉNYEK ÉS GYERMEKINTÉZMÉNYEK
Óvoda és bölcsőde:
Ürömben a Napraforgó Óvoda (Fő u. 37.) és tagóvodája (Kossuth L. u. 3.) látja el a helyi óvodásokat, tevékenységközpontú, részben német nemzetiségi, kétnyelvű programmal. Emellett működik magánóvoda is, pl. Boldog Gyermekek Háza Óvoda (Fenyves u. 17.), illetve helyben elérhető bölcsődei ellátás is.
Általános iskola:
A József Nádor Német Nemzetiségi Általános Iskola Ürömön (Iskola u. 3.) nyolcosztályos általános iskolaként működik, német nemzetiségi profillal, és ellátja Ürömhegy lakosságát is. A közelben alternatíva a Csillaghegyi Általános Iskola (1038 Budapest, Dózsa György u. 42.), amely családias, nyolc évfolyamos iskola, erős nyelvoktatással és sportlehetőségekkel.
Középiskolák, gimnáziumok a közelben:
Ürömhegyhez legközelebb Óbuda, Békásmegyer és a 2. kerület középiskolái, gimnáziumai érhetők el (több nyolc- és hatosztályos gimnáziummal), ahova a helyi általános iskolából is sokan mennek tovább. Speciális profilú középiskolák (nyelvi, művészeti, technikumi képzések) főként Budapesten, tömegközlekedéssel is elérhető távolságban vannak Ürömhegyről.
Nyelvi, nemzetiségi sajátosságok:
Ürömben erős a német nemzetiségi jelenlét: az óvodában tevékenységközpontú kétnyelvű német program fut, az általános iskola pedig német nemzetiségi iskola. Ez a környéken élő családoknak jó lehetőség korai nyelvtanulásra és kétnyelvű nevelésre már óvodától kezdve.
ÉLELMISZERBOLTOK ÉS EGYÉB SZOLGÁLTATÁSOK
Helyi élelmiszerboltok, diszkontok:
Lidl Üröm, Dózsa György út 63. – nagy parkolóval, teljes élelmiszer- és non-food kínálattal, hosszú nyitvatartással (hétköznap 6:30–21:00, vasárnap 7:00–19:00). Ürömön és Békásmegyer felé több kisebb ABC, Coop és SPAR található, amelyek gyors, mindennapi bevásárlásra alkalmasak (pl. SPAR Csobánka tér, SPAR Víziorgona utca).
Nagyobb szuper- és hipermarketek:
Auchan Óbuda (Szentendrei út 115.) – teljes hipermarket kínálat, ingyenes nagy parkoló, online rendelés és átvételi lehetőségekkel. Tesco Bécsi út 258. – hipermarket jellegű Tesco, élelmiszerrel, háztartási és műszaki cikkekkel, jó elérhetőséggel autóval Ürömhegyről.
Közeli bevásárlóközpontok:
GOBUDA Mall (Bécsi út 154.) – modern bevásárlóközpont sok üzlettel, szolgáltatóval és vendéglátóhellyel, jó opció ruházatra, szolgáltatásokra, „plázás” bevásárlásra. STOP SHOP Óbuda (Bécsi út 136.) – kültéri bevásárlópark divat-, cipő-, drogéria- és egyéb üzletekkel, ingyenes parkolóval. Csillag Center (Rákóczi u. 36., Csillaghegy) – kisebb, de jól használható központ, több bolt, pékség, drogéria, szolgáltatások egy helyen.
Regionális nagy hipermarket:
Auchan Budakalász (Omszk park 1.) – nagy hipermarket és bevásárlópark, széles kínálattal (élelmiszer, háztartás, ruha, műszaki), autóval Ürömhegyről rövid idő alatt elérhető, ingyenes parkolóval.
Az ingatlanok erősségei
VÍZTÁVOLSÁG
250m
JÓL ÁTGONDOLT TERVEKKEL
MAGAS
FELSZERELTSÉGGEL
TERASSZAL,
ERKÉLLYEL
ÚJ
ÉPÍTÉSSEL
FELSZÍNI
BEÁLLÓKKAL
ALACSONY
FENTTARTÁSSAL
KETTŐ
SZINTTEL
"CSOK"
IGÉNYLÉSSEL
III.ker. Ürömhegy – ÚJ ÉPÍTÉSŰ, ENERGIATAKARÉKOS ikerházak eladók! 120,74m²+32,41m² | 110,49m²+37,36m² | 126,52m²+43m² | 128,14m²+ 43,30m².

III.ker. Ürömhegy – ÚJ ÉPÍTÉSŰ, ENERGIATAKARÉKOS ikerházak eladók! 120,74m²+32,41m² | 110,49m²+37,36m² | 126,52m²+43m² | 128,14m²+ 43,30m².





















